Lift right when space is tight.

Sometimes there’s just not enough room above a load to use a standard hoist. That’s where the low profile SHB hoist and trolley combo work where others can’t. Built around the quality CB hoist with headrooms as low as 4.5 inches, the SHB is ideal for demanding industrial lifting applications where space is extra tight.

Lift right when space is tight.

Ultra Low-Profile Lifting & Maximum Hook Travel

With headroom as low as 4.5 inches, the SHB lets you use every inch of available space. The short headroom feature is specifically engineered to provide maximum hook travel that meets the demands of your constricted lifting application.

Ultra Low-Profile Lifting & Maximum Hook Travel

Permanently Attached Hand Geared Trolley

Engineered to function as a single unit, the SHB integrates the proven performance and durability of Kito’s standard CB Hoist with a permanently attached, industrial grade, hand-geared trolley.

Permanently Attached Hand Geared Trolley

Heavy-Duty Wheels & Steel Side Plates

Heavy-duty lifting applications need heavy-duty equipment that can stand up to your demands. The SHB’s cast trolley wheels and structural steel side plates take the weight and provide rigid support and reliability at the same time.

Heavy-Duty Wheels & Steel Side Plates

Maintenance-Free Sealed Trolley Bearings

Focus on the task at hand, not the maintenance of your equipment. The maintenance-free trolley bearings on the SHB are sealed and life-long-lubricated providing you with years of smooth, reliable, quiet operation.

Maintenance-Free Sealed Trolley Bearings

Adjustable For Tapered or Flat Flanged Beams

Trolley wheels on the SHB are designed to work with both tapered and flat-flanged beams.


Design

CAPACITY

  • One to 10 metric tonnes

STANDARDS

  • ASME B30.16 Safety Standard
  • ASME HST-2 Performance Standard
  • At rated capacity, load-bearing parts are only stressed to 25% of their limit

OPTIONS

  • Chain bag to keep chain clean and out of the way
  • Corrosion resistant chain for tough environments
  • Custom lift lengths to suit your requirements

LOW HEADROOM FEATURES

  • Headroom as low as 4.5”
  • Built-in trolley with cast wheels, sealed bearings and steel side plates for heavy-duty applications

BODY

  • Durable all-steel construction
  • Rugged gear case and hand wheel cover
  • Compact design for low headroom and lightweight portability

HAND CHAIN

  • High-quality steel

LOAD CHAIN

  • Heat-treated, low-weight manganese alloy steel
  • Grade 100
  • High-impact steel chain guide
  • Standard Lift: 20 feet

HOOK

  • Forged, heat-treated, opens gradually when overloaded
  • Self-closing heavy-duty hook latch

OPERATION

  • Hand chain operated
  • Reduced operator fatigue through efficient drive train

GEARS

  • Double reduction gearing requiring very low effort to operate
  • Induction heat-treated and case-hardened
  • Enclosed to protect from dust and water

BEARINGS

  • Maintenance-free sealed bearings increase reliability and reduce pull force required to lift loads

BRAKE

  • Double pawl springs for extremely reliable operation and instant brake activation
  • Enclosed to protect from dust, rain and dirt

OPERATING CONDITIONS

  • Recommended for -20° to +60°Celsius

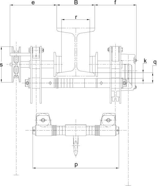
Ultra-Low Headroom Hand Chain Hoist – Geared Trolley Mount

DiagramDiagram

Dimensions
Capacity (tonne) Model a b d e f g h i j k l m n o p q r s t
1 SHB010 237 377 5791 201 180 5791 29 106 71 25 114 61 150 290 368 46 B-41 153 244
2 SHB020 281 436 5791 227 194 5791 36 127 85 31 168 68 180 335 418 53 B-51 153 290
3 SHB030 340 510 5791 240 207 5791 42.5 148 100 35 177 88 220 390 438 61 B-56 183 325
5 SHB050 397 587 5791 265 223 5791 46.5 169 118 39 224 97 265 455 514 71 B-74 183 391
7.5 SHB075 445 638 5791 282 216 5791 62 185 155 33 268 91 300 493 498 84 B-89 214 419
10 SHB100 445 638 5791 282 216 5791 62 185 155 33 268 91 300 493 498 84 B-89 214 419
Specification
Capacity (tonne) Model Standard Lift (ft) Headroom (in) Hand Pull to Lift Full Load (kg) Standard Flange (in) Load Chain Code Load Chain Falls Ship Weight (lbs) Weight per Additional 5ft of Lift (lbs)
1 SHB010 20 4.5 29 2.3-6.4″ KCF050 2 176 10
2 SHB020 20 5.7 26 3.2-8.0″ KCF071 2 281 14
3 SHB030 20 6.5 34 3.2-8.0″ KCB3080 2 395 16
5 SHB050 20 7.7 41 3.9-8.0″ KCB3090 2 665 19
7.5 SHB075 20 10 34 5.5-8.6″ KCB3090 4 868 31
10 SHB100 20 10 44 5.5-8.6″ KCB3090 4 868 31